Гнізда для голубів
Сьогодні голуби зустрічаються частіше інших птахів. На всіх вулицях міста, незалежно від їх значущості або краси, зустрічаються голуби, які прикрашають і надають особливого колориту. Голуби – це красиві, граціозні і досить сміливі птиці, які мешкають зграями у всіх парках, площах та інших місцях відпочинку. Декоративних голубів розводять в спеціально обладнаних голубниках. Гнізда для голубів необхідні для відкладання і висиджування яєць.


Гнізда для голубів
Якісні гнізда, які вони?
Незалежно від досвіду людини в розведенні птахів, кожен заводчик замислюється про оптимальні умови утримання. Побудувати приміщення – це ще не вся процедура благоустрою голубники, так як птахи потребують деякого елементарному комфорт. Облаштування гнізда приділяється не менше уваги, ніж самому житлу.

Голуби потребують елементарному комфорт
Для розведення голубів слід створити сприятливі умови. Спочатку, звичайно ж, будується саме приміщення. Важливо, щоб усередині воно було упорядковано, у кожного голуба було індивідуальне місце, в тому числі для висиджування яєць. Місця для сидіння повинні бути парними, для двох або більше особин. Слід встановити в приміщенні не тільки сідала, а й гнізда.

В голубника повинні бути сідала
Важливо! Форма, розміри і побудова гнізда можуть відрізнятися, але здебільшого залежать від породи голуба.
Для невеликої голубники зручно розподіляти простір таким чином, щоб в одній половині перебували сідала, а за Перестенко або уздовж стін були спеціальні ніші з гніздами.

Устаткування сідало вкрай просте, слід на відстані більше 50 см від стелі горизонтально закріпити брус. Для зручного розташування голубів слід робити брус шириною від 2 до 4 см. Більше 4 см не слід робити, інакше птахам буде незручно сидіти. Породи, у яких на лапках знаходиться багато пір'я НЕ будуть їх пошкоджувати, відповідно зберігаючи естетичну красу. Гнізда обладнуються окремо, зазвичай встановлюється тільки каркас і голубам надаються «матеріали для будівництва», тобто вистилання підстилки.

Голубник на 3200 голубів в замку Епуасс

Сідала для голубів
Оптимальні габарити гнізд – 80х40х30 (ДхШхВ). Використовуючи дані габарити, можна споруджувати гнізда окремо, наприклад, в ящиках, а потім встановлювати їх на полиці або вмонтувати в стіну. Відзначається, що знімні конструкції кілька зручніше, в разі чого їх можна вийняти і замінити підстилку. Також після закінчення шлюбного періоду і плекання пташенят гнізда можна вилучити з голубники, що дозволить звільнити місце для більшої кількості птахів. До речі, кучність птахів може призводити до їх хвороб, тому не слід надмірно забивати голубник.

Важливо! Для підтримки здорового стану голубів слід будувати приміщення з достатнім рівнем вентиляції.
Не обов'язково обладнати голубники спеціальною системою. Слід, щоб були простору між дошками і спеціальний вентиляційний отвір. За необхідності він може затикатися будь-якою тканиною, якщо на вулиці холодно, а в теплу погоду знову відкриватися для комфортного мікроклімату голубники. Великих щілин бути не повинно, допускається тільки невелике провітрювання, інакше буде гуляти протяг, що призведе до хвороби голубів.

Голубник своїми руками. Облаштування, вентиляція
Голуби не дуже люблять організовані гнізда, вважають за краще самостійно упорядковувати шлюбне лігво. Найкраще забезпечити цю можливість, наприклад, поставити каркас (згодиться простий ящик), а поруч покласти сіно, солому, невеликі гілки. Завдяки такому підходу забезпечується відчуття затишку для птиці, інакше можлива відмова від розмноження. Деякі птахи можуть повністю відмовлятися від створеного гнізда.
Голуби люблять сонячне світло, тому слід забезпечити безперешкодне його потрапляння всередину. Для цього рекомендується встановлювати невелике вікно.

Гнізда для голубів
Рекомендації по облаштуванню гнізд
Правильно упорядковане житло для птахів – це запорука їх якісного розвитку, самопочуття і розмноження.

Голубка в гнізді
Незважаючи на оманливу простоту питання, існують деякі нюанси побудови, які важливо враховувати.
- До вибору гнізд слід підходити, ретельно розрахувавши їх необхідну величину. На габарити каркаса впливає вид голубів і їх величина. Необхідно створити достатню місце для пари голубів і їх потомства, інакше існує ризик для пташенят. Дорослі особини в тісних коробках можуть розчавити або спровокувати відхилення в розвитку маленьких пестять.

Устаткування для голубники

Гніздо у вигляді дерев'яного ящика зустрічається найчастіше

Гнізда для голубів знімні

Гнізда стоять в осередках з бортиками

Важливо, щоб в голубника було легко провести прибирання та дезінцекцію
Гнізда і їх види
Сьогодні рясне поширення набули гнізда з різних матеріалів, переважно підручних. Найпопулярніші – це дерев'яні конструкції, їх досить просто змайструвати, і вони міцні, придатні до багаторазового використання. Такі конструкції виготовляються прямокутної форми.

Дерев'яне прямокутне гніздо
Важливо! Використання в якості матеріалу пластика, гіпсу або інших матеріалів дещо відрізняється за своїми функціональними особливостями. Гніздування більш зручні для птиці, якщо мають округлу форму.

Гнізда для голубів пластикові

Пташенята в круглому гнізді
В кінцевому рахунку матеріал для споруди гнізда вибирається, виходячи з переваг голубівника, естетичної привабливості.
Також важливим нюансом є дотримання санітарних норм, матеріал повинен легко і безперешкодно очищатися. Екологічна складова відіграє важливу роль, так як при виділенні парів, токсинів та інших шкідливих речовин погіршується здоров'я особин, згодом зменшується кількість здорового виводка.
Гніздо з дерева
Найбільш доступний, зручний, екологічний і поширений матеріал – це дерево. Його можна знайти практично в кожному господарстві. Перед початком роботи слід підготувати інструмент, Який буде використаний при будівництві гнізда:
- підготувати молоток і цвяхи для закріплення стінок, сідало, формування цілісної структури голубники. Можна замінити на шуруповерт і саморізи;
- взяти олівець, маркер для формування позначок;
- доведеться використовувати рулетку, рівень або лінійку;
- підготувати пилу;
- знадобиться матеріал для зачистки поверхні, це може бути наждачний папір або будь-абразив;
- основний матеріал – дошки, підійдуть бруски товщиною близько 2 см;
- металева сітка з дрібними осередками.

Ящик можна зробити з ЛДСП
Тепер слід перейти до практичної частини побудови осередків для гнізд.
Крок 1. Взяти дошки, важливо упевнитися, що вони добре обстругані, інакше шорсткості і задирки можуть призводити до порушення цілісності пір'яного покриву і поранень птахів. Якщо якість не відповідає, необхідно вручну зачистити дошки наждачкою.
Крок 2. Потрібно зробити виміри і олівцем поставити мітки на дошках. Необхідно робити каркас з 4-х сторін, при цьому дно поки що не чіпати.
Крок 3. Розпиляти дошки по мітках.

Матеріал потрібно розпиляти по розмітці
Крок 4. Зібрати стінки комірки (гнізда), для цього використовуються цвяхи або шурупи.

З'єднання полиць ящика

Прикручування третьої полиці

Ящик для гніздування голубів
Крок 5. Як дна застосовується металева решітка, її слід прикріпити за допомогою цвяхів. Використання сітки не обов'язкова, дно можна зробити дерев'яним, наприклад, з фанери.

Сітчастий підлогу в стандартне гніздо

Фанеру прибивають тонкими гвоздиками
Кругла форма
Не всі голубівники сходяться в думках, яка форма для гнізда підходить краще. Існують і ті, хто вважає більш зручною формою – круглі гнізда. Досить купити пластикову тару і розставити її по полицях, але слід врахувати, що такі гнізда дуже легкі і голуби можуть їх завалити.
Якщо немає бажання витрачати кошти на придбання тари для гніздівлі, то можна її виготовити самостійно. Найлегше змайструвати осередок за допомогою пінопласту. Цей матеріал може кришитися від механічного впливу, але добре витримує температурні перепади і не дасть виводку замерзнути. У більшості випадків таке гніздо успішно служить 3 і більше року.
Для формування круглого гнізда слід підготувати ряд матеріалів та інструментів:
- стане в нагоді цілий лист пінопласту, краще брати матеріал з високою міцністю і щільністю;
- підготувати залізну каструлю, краще не емальовану, стане в нагоді в якості форми для гніздування;
- ніж для надання форми, він повинен бути гострим, краще використовувати будівельний;
- будь-якої клей, підійде стандартний ПВА, «дракон» або подібні спеціальні суміші;
- будівельний бинт;
- для підстилки – пергамент.
Після збору і підготовки перерахованих матеріалів можна зайнятися безпосередньо виробництвом гніздування.
Крок 1. Взяти лист пінопласту, на ньому слід відміряти розміри гнізда, зробити розмітку маркером.
Крок 2.Розрізати пінопласт на рівні прямокутні частини за допомогою ножа.
Крок 3. Поверхня матеріалу слід покрити пергаментом.
Крок 4. Каструлю підігріти і встановити на лист пергаменту.
Крок 5. Під гарячим дном каструлі пінопласт буде плавитися, слід рівномірно натискати на неї. Продовжувати до освіти виїмки достатньої глибини.
Крок 6.Щоб матеріал не руйнувався, його слід попередньо промазати клеєм. Зверху, ще до застигання клею, потрібно укласти будівельний бинт. Це робиться з метою армування пінопласту і запобігання його крошения.
Виконавши це просту процедуру, вдається спорудити зручну осередок для голубиного сімейства.

Місця для гніздування

Стелаж з гніздами

Гніздо пінопласту після декількох років експлуатації
Принципової різниці у виборі матеріалу між зазначеними варіантами немає. У тому числі саморобні і куплені не мають відмітних характеристик як проживання голубів.

Пінопласту гніздо зі старої каски
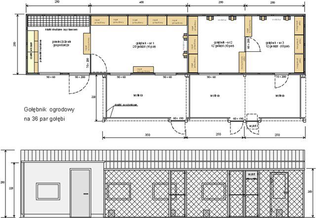
Оптимальні розміри гнізд і голубники
Загальновизнані норми на виготовлення осередків для створення гнізд носять такі габарити: довжина 30 см, необхідно, щоб висота бортика досягала 8 см, ширина 25 см.
Голубник: розміри
розміри гнізд




Голубохохлий вінценосний голуб або інші великі види
Особливості будови голубники
Споруда повинна відповідати базовим вимогам комфортного розміщення голубів, інакше будуть спостерігатися труднощі з розведенням. Щоб домогтися максимально ефективного догляду та комфортною обстановки в приміщенні, слід дотримуватися рекомендацій.
- Споруда повинна бути просторою. Голуби схильні до бійок, вони можуть злітати всередині голубники, розмахувати крилами і для всього цього має бути передбачено місце. При цьому сідала знаходяться трохи вище від землі, але і не в межах досяжності стелі. Вільний простір дозволяє уникати травм у особин.

Голубам незатишно в обмеженому просторі

Голубник повинна вентилюватися

В голубника має бути чисто і сухо

Годівниці і поїлки в голубника

Тирса для підстилки – дуже зручний матеріал

Біоцидний препарат для сухої дезинфекції голубники з широким спектром дії

Сідало розбірний для голубів
Важливо! Матеріали для виготовлення повинні бути екологічно чистими, бажано натуральними.
Місце гніздування голубів може бути простішим, якщо осередки для гнізд робити відразу по кілька штук. Використовуючи стелажі, вдається убезпечити голубів від перекидання легких пінопластовим ящиком і заощадити місце в голубника.При цьому стелажі можна пересувати, особливо зручно, якщо прикріпити знизу коліщатка. При цьому конструкція простіша, а кріплення легке.
Більшість опитаних заводчиків голубів мають у себе в арсеналі такі стелажі, їх можна без праці самостійно приготувати, потрібна менша кількість матеріалів ніж приготування осередків, бо не будуть залишатися в великих кількостях обрізки. Можливе застосування залізного каркасу, але це ускладнить процес виробництва конструкції, зате зробить її більш міцною і зручною. Для ручного побудови використовуються такі параметри – розмір осередку 30x30x30 см (для дрібних і середніх голубів), розглянемо виготовлення стелажа з 9 осередків:
Крок 1. Необхідно 5 широких дощок по 35 см в ширину і 1 м в висоту, можна збити з декількох різних. Для закриття стелажа ззаду краще використовувати фанеру. Також невеликі шматочки, можливо обрізки для внутрішнього поділу на блоки, вони також широкі, але довжиною близько 30 см.
Крок 2. З'єднати 3 довгі дошки, щоб утворилася буква П.
Крок 3. Розділити простір всередині на 3 рівні частини і в двох місцях вертикально закріпити решту 2 дошки.
Крок 4. Тепер встановити полки, для цього вільне місце по висоті також розділити на 3 рівні частини, аналогічно прикрутити 2 невеликі дошки тільки горизонтально в обох нішах, також ще 2 дошки для підлоги в нижньому відсіку.
Крок 5. Кожну клітинку усередині додатково розділити навпіл (за бажанням).
Крок 6. Потім закріпити задню кришка з фанери.
Спереду створюється огорожа, вона повинна бути досить висока, щоб запобігти випаданню, а й зручна для зальоту в клітинку, близько 8-10 см.

Підготовка до гнездовому сезону. Стелажі і гнізда
Важливо! Якщо голуби великі, то слід дещо збільшити розмір осередку до 40x40x40 см. Отриманий стелаж можна повністю обладнати для гнізд або створити кілька осередків іншого призначення. Можуть використовуватися ящики для спарювання і порожні для сідала.
Іноді приготування стелажа для гніздування може бути ще простіше, якщо в господарстві є достатня кількість ящиків, хоча б з міцного картону або пінопластові вставки. Їх слід скрутити воєдино і використовувати як імпровізований стелаж, який може прослужити достатньо довго.